Aktuelle Verkaufsobjekte
Ellgau, Nordfeldstraße 13
Eigentumswohnung im Erdgeschoss mit Terrasse und Gartennutzung · Baujahr 2020
| Schlafen | 12,30 m² |
| Kind | 11,32 m² |
| Kind 2 | 18,10 m² |
| Kind 3 | 11,32 m² |
| Wohnen/Essen/Küche | 43,84 m² |
| Diele | 7,85 m² |
| Gäste | 13,51 m² |
| Bad Gäste | 7,50 m² |
| Flur | 6,92 m² |
| Terrasse (Ansatz 50 %) | 10,39 m² |
| Wohnfläche gesamt | 150,41 m² |
Rieblingen, Asbacher Straße 2
6 Eigentumswohnungen mit oberirdischen Garagen · geplante Fertigstellung Winter 2026/2027
| Schlafen | 15,12 m² |
| Wohnen/Essen/Küche | 30,54 m² |
| Bad | 6,17 m² |
| Flur | 10,05 m² |
| Terrasse (Ansatz 50 %) | 10,22 m² |
| Gartenanteil | ca. 64 m² |
| Wohnfläche gesamt | 72,10 m² |
| Schlafen | 14,53 m² |
| Wohnen/Essen/Küche | 30,40 m² |
| Bad | 6,29 m² |
| Flur | 10,26 m² |
| Terrasse (Ansatz 50 %) | 10,22 m² |
| Gartenanteil | ca. 67 m² |
| Wohnfläche gesamt | 71,70 m² |
| Schlafen | 34,79 m² |
| Kind 1 | 13,02 m² |
| Kind 2 | 11,43 m² |
| Wohnen/Essen/Küche | 34,79 m² |
| Bad | 7,39 m² |
| Abstellraum | 5,68 m² |
| Flur | 12,48 m² |
| Balkon (Ansatz 50 %) | 4,09 m² |
| Wohnfläche gesamt | 105,75 m² |
| Schlafen | 16,87 m² |
| Kind 1 | 12,66 m² |
| Kind 2 | 11,28 m² |
| Wohnen/Essen/Küche | 34,19 m² |
| Bad | 7,71 m² |
| Abstellraum | 5,21 m² |
| Flur | 12,57 m² |
| Balkon (Ansatz 50 %) | 4,09 m² |
| Wohnfläche gesamt | 104,58 m² |
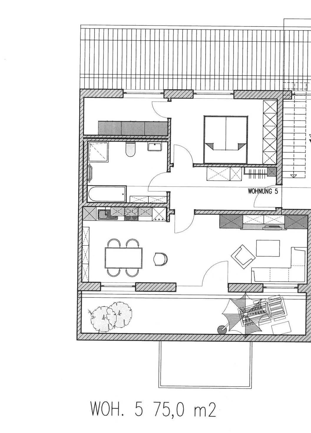
| Schlafen | 12,79 m² |
| Wohnen/Essen/Küche | 29,74 m² |
| Bad | 8,98 m² |
| Ankleide | 5,79 m² |
| Flur | 8,62 m² |
| Dachterrasse (Ansatz 50 %) | 9,08 m² |
| Wohnfläche gesamt | 75,00 m² |
| Schlafen | 12,37 m² |
| Wohnen/Essen/Küche | 27,89 m² |
| Bad | 10,04 m² |
| Ankleide | 6,24 m² |
| Flur | 8,46 m² |
| Dachterrasse (Ansatz 50 %) | 9,02 m² |
| Wohnfläche gesamt | 74,02 m² |